

 
 
 
Стоимость доступа к скачиванию: 50 руб.
Размер архива: 7.76 Mb
Чертежи в формате: PDF
Состав проектно-сметной документации (42 листа):
– АР Архитектурные решения
– КД Конструкции деревянные
Технико-экономические показатели:
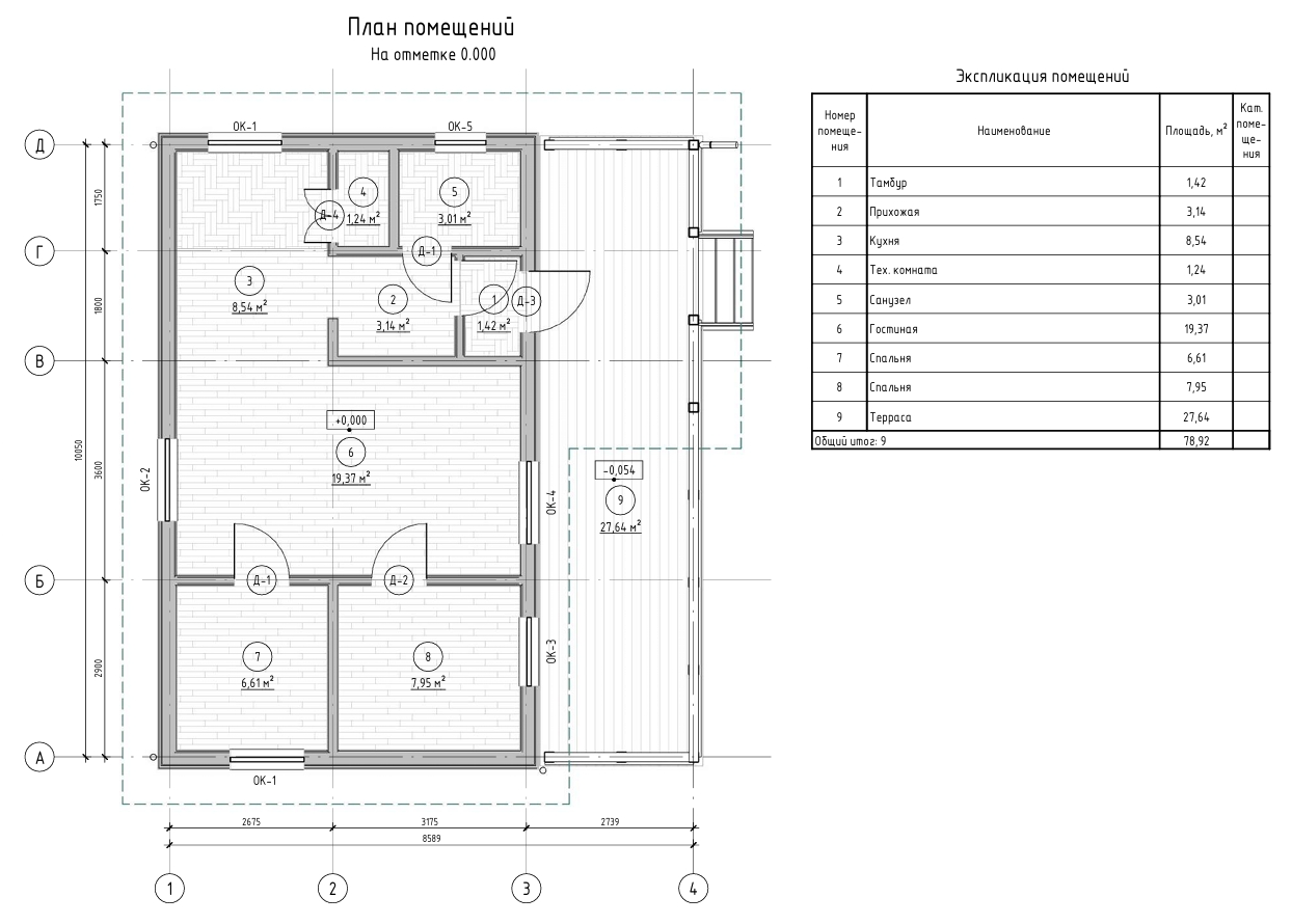
Этажность, эт. - 1
Общая площадь здания (теплый контур) - 51,28 м2
Общая площадь здания (в т.ч. терраса 27,64 м2) - 78,92 м2
Площадь застройки - 93,41 м2
Габаритные размеры дома по осям- 5,9х10,0 м (без учёта террасы)
Проектируемое здание представляет собой в плане прямоугольный одноэтажный объем с двускатной кровлей. Размеры здания в осях в плане составляют 5,9 м на 10 м. Отметка ±0,000 соответствует уровню чистовой отделки пола.
Конструктивные решения:
1. Наружные стены - каркасные, с заполнением минераловатным утеплителем, плотностью не менее 45 кг/м3. Стойки каркаса - доска 50х150 мм. Дополнительное утепление 50 мм. по бруску снаружи.
Состав наружной стены:
Отделка фасада- доска 20 мм;
Вентзазор по бруску- 50 мм;
МДВП Белтермо шип-паз- 20 мм;
Доп. утепление по бруску- 50 мм;
Утепление по стойкам- 150 мм;
Пароизоляционная мембрана;
Воздушная прослойка по доске- 25 мм;
Отделка- доска 20 мм.
2. Внутренние стены - каркасные, с обшивкой вагонкой/имитецией бруса. Стойки каркаса - доска 50х150 мм. Перегородки - стойка каркаса 50х100 мм с заполнением минераловатным утеплителем(звукоизоляция), плотностью не менее 45 кг/м3.
3. Кровля - скатная, с оргнанизованным холодным чердаком. Стропильная система из доски 200х50 мм. Покрытие - мягкая черепица по сплощному основанию..
Состав чердачного перекрытия:
Настил чердака- доска 25х100 мм;
Гидро/ветрозащитная мембрана;
Доп. утепление по бруску- 50 мм;
Утепление по балкам- 200 мм;
Пароизоляционная мембрана;
Воздушная прослойка по доске 25 мм;
Отделка- доска 20 мм.
4. Полы - ламинат кл. 33 по сплошному основанию. Устройство полов следует производить только после завершения всех монтажных работ по проводке инженерных коммуникаций.
Состав цокольного перекрытия:
Ламинат- 10 мм;
OSB 3- 22 мм;
Утепление по лагам- 200 мм;
Доп. утепление по бруску- 50 мм;
Гидро/ветрозащитная мембрана;
Сетка сварная, оцинк, ячейка 5-6 мм;
Доска подшива- 25 мм, шаг 300 мм. |